[Estate] - White Rock

  • $820,900
City of Ipswich, White Rock, QLD, 4306

[Estate] - White Rock

City of Ipswich, White Rock, QLD, 4306
  • $820,900

Details

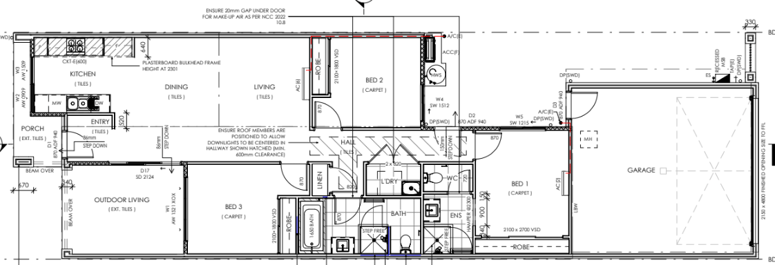
  • Property ID:15843
  • Bedrooms:3
  • Bathrooms:2
  • Garage:2
  • Property Type:Terrace/Villas

Description

*Please be advised that some lots/units may need confirmation of availability. Kindly ensure to check availability first by emailing or phoning us.*

Located within the Springfield/Ripley region, one of the fastest growing corridors in Australia, these boutique residences comprise of 16 architecturally designed homes perfectly situated within a boutique master planned development, set amongst leafy, tree lined streets.

[Estate] is a magnificent master plan community developed by Intrapac, and is an exceptional neighbourhood designed for families – with more than 34 hectares of lush green parklands, sports fields, bike and walking trails, gardens, local neighbourhood parks and the Adventure Playground.  

[Estate] is ideal for first home buyers, young families and empty-nesters that are looking to become a part of a growing community within an established suburb rich in infrastructure.

Sitting within the Springfield/Ipswich/Ripley region, [Estate] has seen continued rapid growth due to the increased infrastructure that has helped this region become one of the fastest growing corridors in Australia.

Easy access to the Ipswich Motorway  means that Springfield is just a short 10 minutes away and the Brisbane CBD is just a 35km drive aware. The recently expanded Orion Shopping Centre at Springfield (180 specialty stores) are all a 10-minute drive away.

[Estate] is also a short drive to the Springfield Train Station. A multitude of primary and secondary schools and universities (University of Southern Queensland Springfield Campus, University of Southern Queensland Ipswich Campus, and University of Queensland Ipswich Campus) are all conveniently nearby – less than 17 kilometres away.

Sub listings

Title Price Beds Baths Garages Storeys Living Area Land Size
2227 $820,900 3 2 2 1 153.00 m2 210 m2
2228 $820,900 3 2 2 1 153.00 m2 210 m2
2229 $820,900 3 2 2 1 153.00 m2 210 m2
2230 $820,900 3 2 2 1 153.00 m2 210 m2
2231 $820,900 3 2 2 1 153.00 m2 210 m2

Address

  • Address City of Ipswich, White Rock, QLD, 4306
  • City City of Ipswich
  • State/countyQLD
  • Zip/Postal Code 4306
  • Country Australia

Similar Listings

Compare listings

Compare